电动O型切断球阀 执行标准
1、设计与制造:GB12237-89、API608、API 6D、JPI 7S-48、BS5351、DIN3357。
2、法兰尺寸:JB/T74~90(JB74~90)、GB9112~9131、HGJ44~76、SH3406、ANSI B16.5、JIS B2212~2214、NF E29-211、DIN2543。
3、结构长度:GB12221-89、ANSI B16.10、JIS B2002、NF E29-305、DIN3202。
4、检验主试验:JB/T 9092、API 598。

电动O型切断球阀 规格参数
|
CH系列执行机构技术参数 |
阀体参数 |
|||
|
电源 |
AC200/220V,50/60Hz |
公称通径 |
DN10~300mm |
|
|
输出力矩 |
50N·M~2000N·M |
公称压力 |
PN1.6 2.5 4.0 6.4 31.5MPa(定制) |
|
|
动作范围 |
0~90° 0~360° |
泄漏量 |
软密封:零泄漏 |
硬密封:≤额定流量的10-5 |
|
动作时间 |
15秒/30秒/60秒 |
执行机构 |
可另配PSQ、HQ、UNIC、361RS等系列电子式电动执行机构 |
|
|
保护装置 |
过热保护 |
流量特性 |
快开特性 |
|
|
环境温度 |
-30°~60° |
可调范围 |
DN10-80 |
DN100-300 |
|
250:1 |
350:1 |
|||
|
手动操作 |
同附带手柄操作 |
基本误差 |
±1% |
|
|
限位 |
电气、机械二重限位 |
死区 |
≤1% |
|
|
防护等级 |
相当于IP-65 |
回差 |
≤1% |
|
|
位置测量 |
可选装开关或电位计 |
适用温度 |
密封面 |
|
|
驱动电机 |
8W/E |
PTFE≤150℃ RTFE≤180℃ PPL≤300℃ 硬密封≤450℃ |
||
|
进线接口 |
PE1/2〞进线线锁 |
|||
CH系列执行机构可直接接收计算机或工业仪表等输出的4~20mADC或1~5VDC控制信号,220VAC电源,根据阀位反馈信号与设定值比较偏差对执行机构驱动电机进行智能步距调整(PID调节),以实现与执行机构配套的阀门或其他装置开度的定位,同时输出4~20mADC的位置反馈信号。其核心控制部件电子式伺服控制器应用现代数字技术,对DCS/PLC规范设计而成,集信号采集、处理、反馈、控制于一体。采用的电子制动电路并附加机械阻尼装置减少 惯性,可瞬时停机,定位时无振荡,定位可达0.3%以上。可控硅输出,动作时间快,输出稳定。体积小,轻便宜人,性能稳定,配套简单,流通能力大,适合于介质是粘稠,含颗粒,纤维性质的场合。目前该阀广泛应用于食品,环保,轻工,石油,造纸,化工,教学和科研设备,电力等行业的工业控制系数。微信:sy1668
电动O型切断球阀 技术参数性能
|
试验压力 |
公称压力(Mpa) |
压力级(class) |
JIS(Mpa) |
|||||||
|
1.6 |
2.5 |
4.0 |
6.4 |
10.0 |
150 |
300 |
600 |
10K |
20K |
|
|
强度试验 |
2.4 |
3.8 |
6.0 |
9.6 |
15.0 |
3.1 |
7.8 |
15.3 |
2.4 |
3.8 |
|
密封试验 |
1.8 |
2.8 |
4.4 |
7.0 |
11.0 |
2.2 |
5.6 |
11.2 |
1.5 |
2.8 |
|
气密试验 |
0.5~0.7 |
|||||||||
电动O型切断球阀 主要零件材料
|
零件名称 |
材 料 |
||||||
|
阀体 |
WCB |
ZG1Cr18Ni9Ti |
CF8 |
CF3 |
ZG1Cr18Ni12Mo2Ti |
CF8M(316) |
CF3M |
|
球体、阀杆 |
2Cr13 |
1Cr18Ni9Ti |
0Cr19Ni9 |
00Cr19Ni11 |
1Cr18Ni12Mo2Ti |
0Cr17Ni12Mo2 |
00Cr17Ni12Mo2 |
|
密封圈 |
聚四氟乙烯(PTFE)、增强聚四氟乙烯(PPL)、对位聚苯 柔性石墨 |
||||||
|
适用介质 |
水、气体、蒸汽、油品等 |
硝酸等腐蚀性介质 |
强氧化性介质 |
醋酸等腐蚀介质 |
尿素等腐蚀性介质 |
||
电动O型切断球阀 流量特性表
|
公称通径 |
不同开度角下的KV值 |
||||||||
|
温度 |
10° |
20° |
0° |
40° |
50° |
60° |
70° |
80° |
90° |
|
50 |
2 |
4 |
9 |
17 |
32 |
60 |
97 |
151 |
215 |
|
80 |
6 |
11 |
22 |
44 |
83 |
155 |
250 |
389 |
550 |
|
100 |
9 |
18 |
35 |
71 |
133 |
248 |
398 |
620 |
890 |
|
150 |
20 |
40 |
80 |
160 |
300 |
560 |
900 |
1400 |
2000 |
|
200 |
36 |
72 |
143 |
286 |
737 |
1002 |
1611 |
2506 |
3580 |
|
250 |
57 |
113 |
226 |
453 |
848 |
1582 |
2543 |
3955 |
5650 |
|
300 |
81 |
163 |
325 |
651 |
1220 |
2278 |
3661 |
5695 |
8100 |

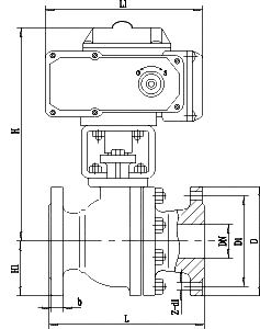
电动O型切断球阀 外形尺寸
|
公称压力DN |
L |
D |
H |
L1 |
D1 |
b |
Z-d1 |
H1 |
|
压力 |
1.6/2.5/4.0 |
1.6/2.5/4.0 |
1.6/2.5/4.0 |
1.6/2.5/4.0 |
1.6/2.5/4.0 |
|||
|
15 |
130/130/140 |
95 |
275 |
157 |
65 |
14/16/16 |
4-14 |
48 |
|
20 |
140/140/150 |
105 |
280 |
157 |
75 |
14/16/16 |
4-14 |
53 |
|
25 |
150/150/165 |
115 |
287 |
157 |
85 |
14/16/16 |
4-14 |
58 |
|
32 |
165/165/180 |
135 |
354 |
208 |
100 |
16/16/18 |
4-18 |
68 |
|
40 |
180/180/200 |
145 |
312 |
208 |
110 |
16/16/18 |
4-18 |
73 |
|
50 |
200/200/220 |
160 |
325 |
208 |
125 |
16/20/20 |
4-18 |
80 |
|
65 |
220/220/250 |
180 |
335 |
256 |
145 |
18/22/22 |
4-18/8-18/8-18 |
90 |
|
80 |
250/250/280 |
195 |
365 |
256 |
160 |
20/22/22 |
8-18 |
98 |
|
100 |
280/280/320 |
215/230/230 |
400 |
256 |
180/190/190 |
20/24/24 |
8-18/8-23/8-23 |
120 |
|
125 |
320/320/360 |
245/270/270 |
420 |
256 |
210/220/220 |
24/28/30 |
8-23/8-25/8-25 |
140 |
|
150 |
360/360/400 |
280/300/300 |
440 |
256 |
240/250/250 |
24/28/30 |
8-23/8-25/8-25 |
167 |
|
200 |
400/400/550 |
335/360/375 |
470 |
256 |
295/310/320 |
26/34/38 |
12-23/12-25/12-30 |
210 |
|
250 |
630 750 |
405 470 |
545 |
380 |
||||
|
300 |
750 870 |
460 530 |
580 |
380 |
